Bedford Square se sitúa en las inmediaciones
del British Museum, en el centro de Londres,
perteneciente a la zona residencial de Fitzrovia
y St. Pancras, donde conviven arquitecturas de
diversa naturaleza, desde apartamentos de los
siglos XVIII y XIX a viviendas sociales.
La propuesta se construyó entre 1775 y 1782 y su
valor es destacable por ser una pieza excepcional
de planificación urbana.
Las cincuenta y tres casas
de la plaza, todas menos una, se disponen en un
orden simétrico en grupos de cuatro, alrededor
del espacio central de la plaza configurado
como intervención paisaística cerrada. Se
caracterizan por ser un ejemplo relevante de la
arquitectura georgiana y por ser el resultado de
la Ley de Edificación de Londres de 1774 donde
la normativa estandarizó y clasificó los nuevos
edificios, contribuyendo a acentuar la sensación
de uniformidad y orden en la ciudad.
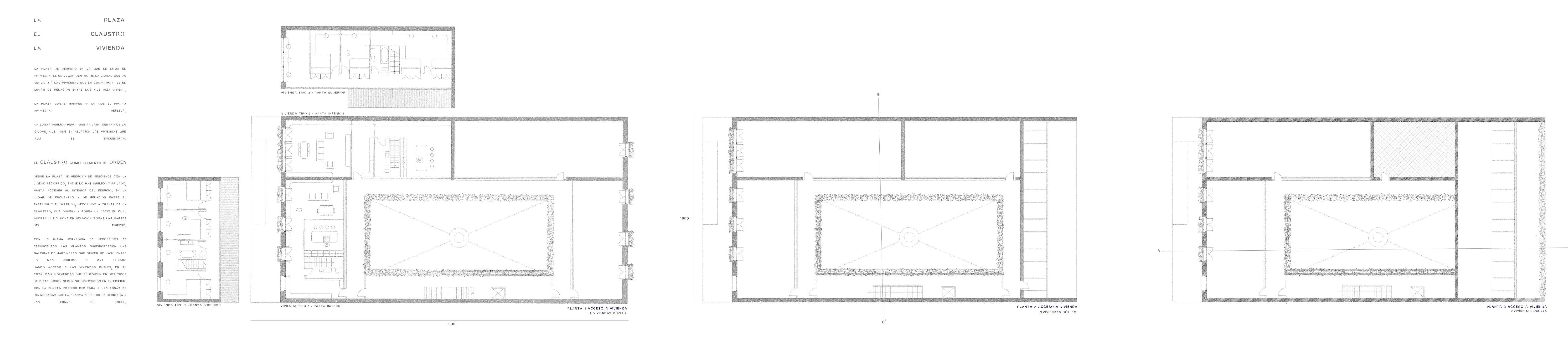
El área de trabajo en torno a Bedford
Square comprenderá el volumen perteneciente a
dos terraced houses. En este espacio alumno deberá diseñar vivienda social sin desvirtuar en ningún momento el orden preexistente y siguiendo la normativa establecida de retrenqueos, cornisas y espacio libre.
josé maría g. crespo + lola s. moya




















